Остановочный павильон "сИТи-П2"
Конструкция сборно-разборная, сборка происходит винтовым соединением при помощи винтов и установленных вытяжных гаек.
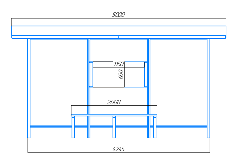
Габаритные размеры:
ширина, мм. - 5000; глубина, мм. - 1855; высота, мм. - 2620
Каркас рамок: профильные трубы 60х60 мм, 60х30 мм.
Материал стен павильона: профилированный лист С8
Крыша: профильные трубы 50х50 мм., 20х20 мм., сотовый поликарбонат 6 мм
Информационное поле: профильные трубы 20х20, фанера влагостойкая 9 мм, окрашенная защитной эмалью.
Лавка: профильные трубы 60х30 мм, пластиковый полимерный профиль
Покраска: полимерное порошковое покрытие с высокими защитными и декоративными свойствами. Цвет по палитре RAL по желанию клиента
Выдерживаемая ветровая нагрузка: 85 кг/м²
Выдерживаемая снеговая нагрузка: 400 кг/м²

